Plattegronden en indelingen bungalows - NOVA HUIS

NOVA-HUIS LOGO
Ga naar de inhoud

Plattegronden en indelingen.


Bij het ontwerpen van een woning kijkt men eerst wie er gaat wonen in de nieuwe woning en hoe de gezinssamenstelling van de bewoner(s) is. Van daaruit ontstaat een indeling. we noemen dat de plattegrond.


Bij levensloopbestendige woningen is er veelal sprake van 1 bouwlaag, namelijk die op de begane grond. Een woning waarin men zich voorbereid op levensloopbestendigheid kunnen ook eerst en (kleine) verdieping krijgen. Deze verdieping kan ook een ruimte zijn die bedoelt is tijdelijk bezoek bijvoorbeeld kinderen of kleinkinderen en overblijvende loge's.

Uiteraard is de kavel ook van invloed om hoe de woning wordt ingedeeld en er uiteindelijk uit gaat zien. Op de pagina plattegronden en indelingen veel u veel inspiratie hoe men een woning kan indelen om alle ruimtes binnen een ontwerp onder te brengen.

Plattegronden en indelingen.

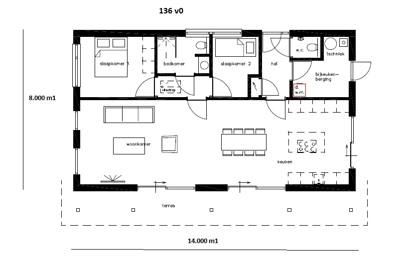
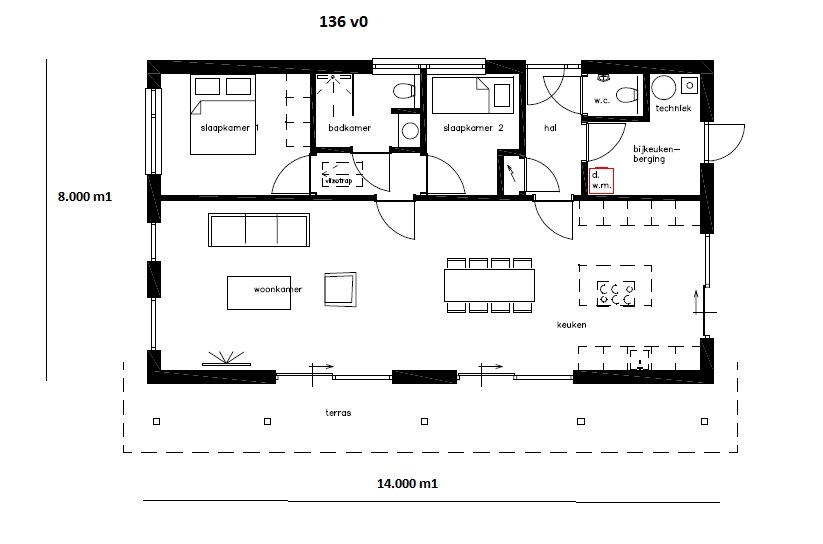
Bungalows 1-laags alles op de begane grond.

Om het complete ontwerp te zien klik op de plattegrond.

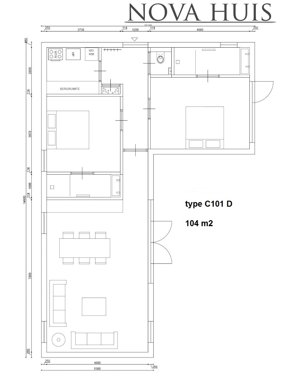
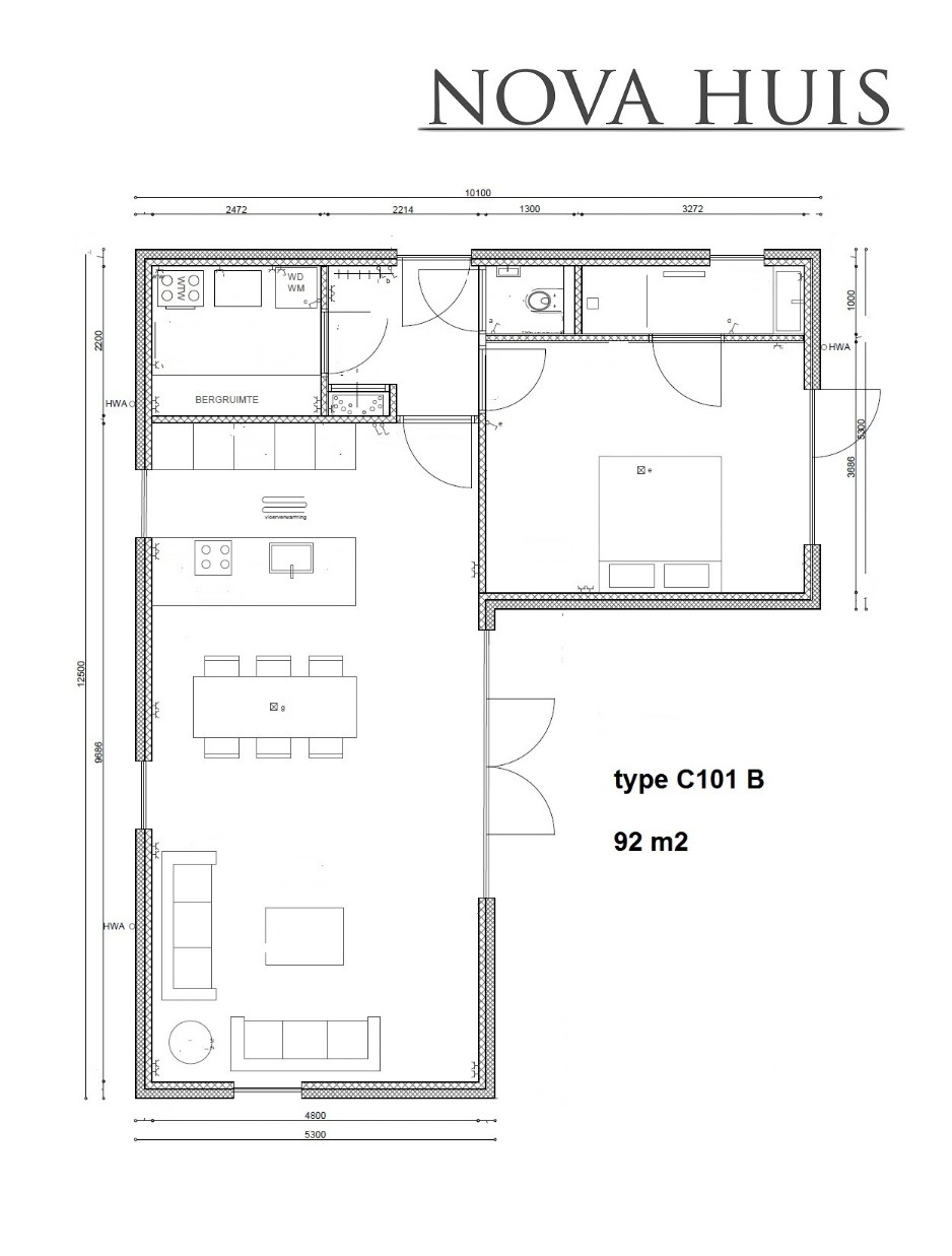
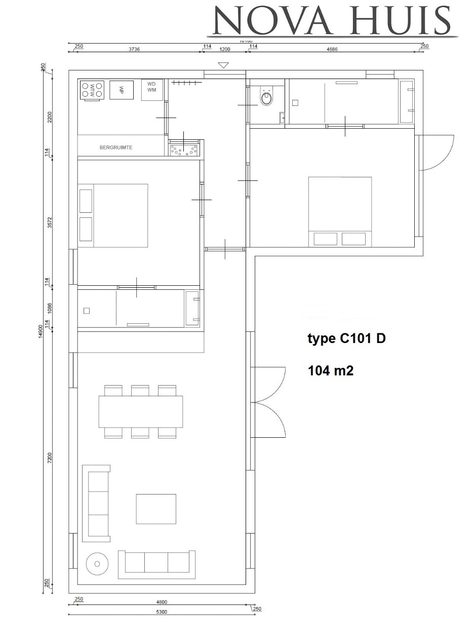
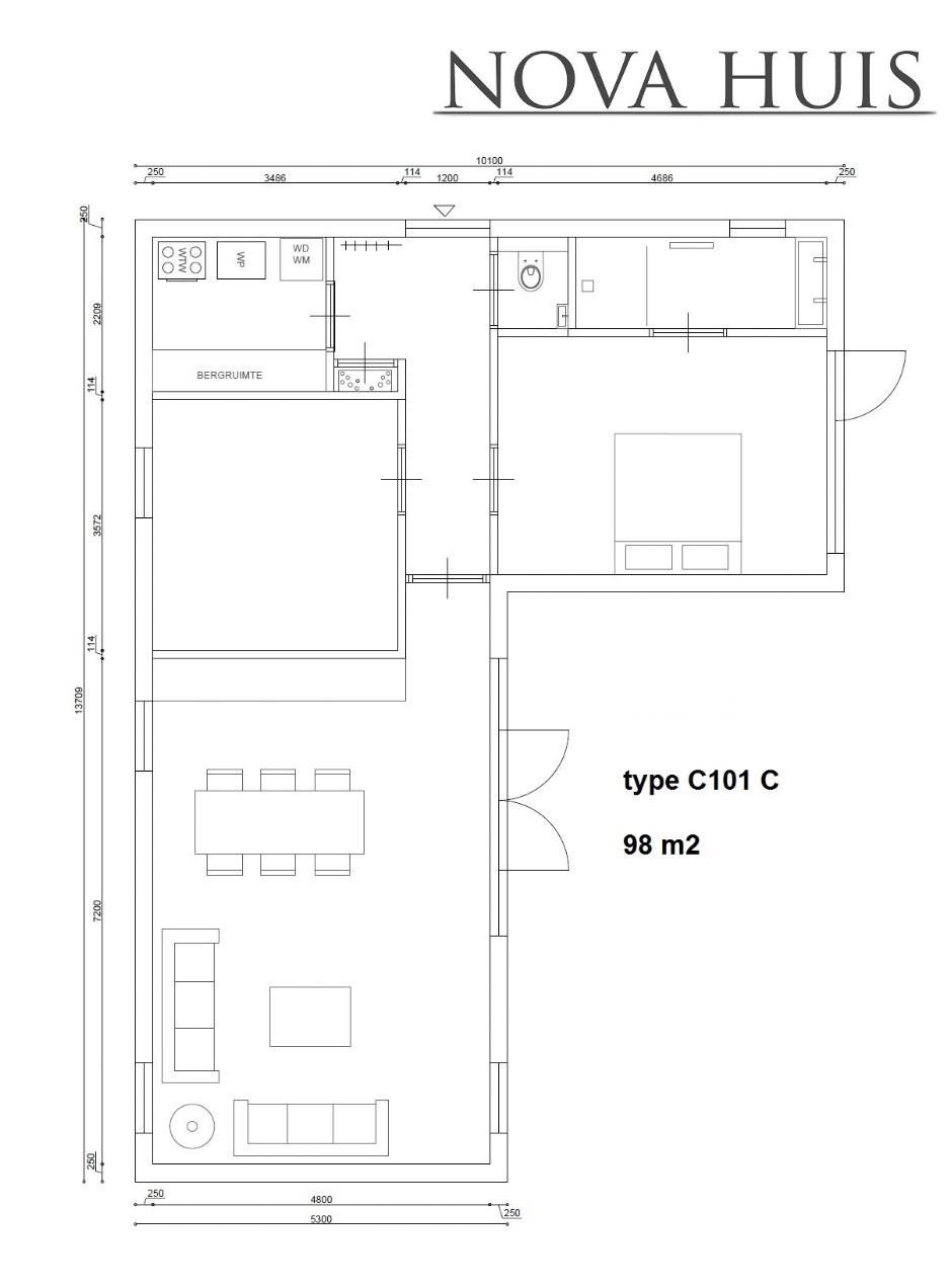
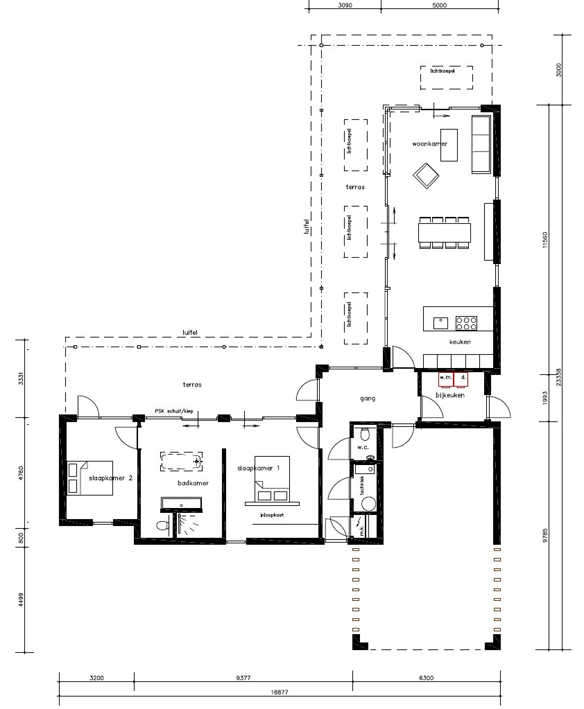
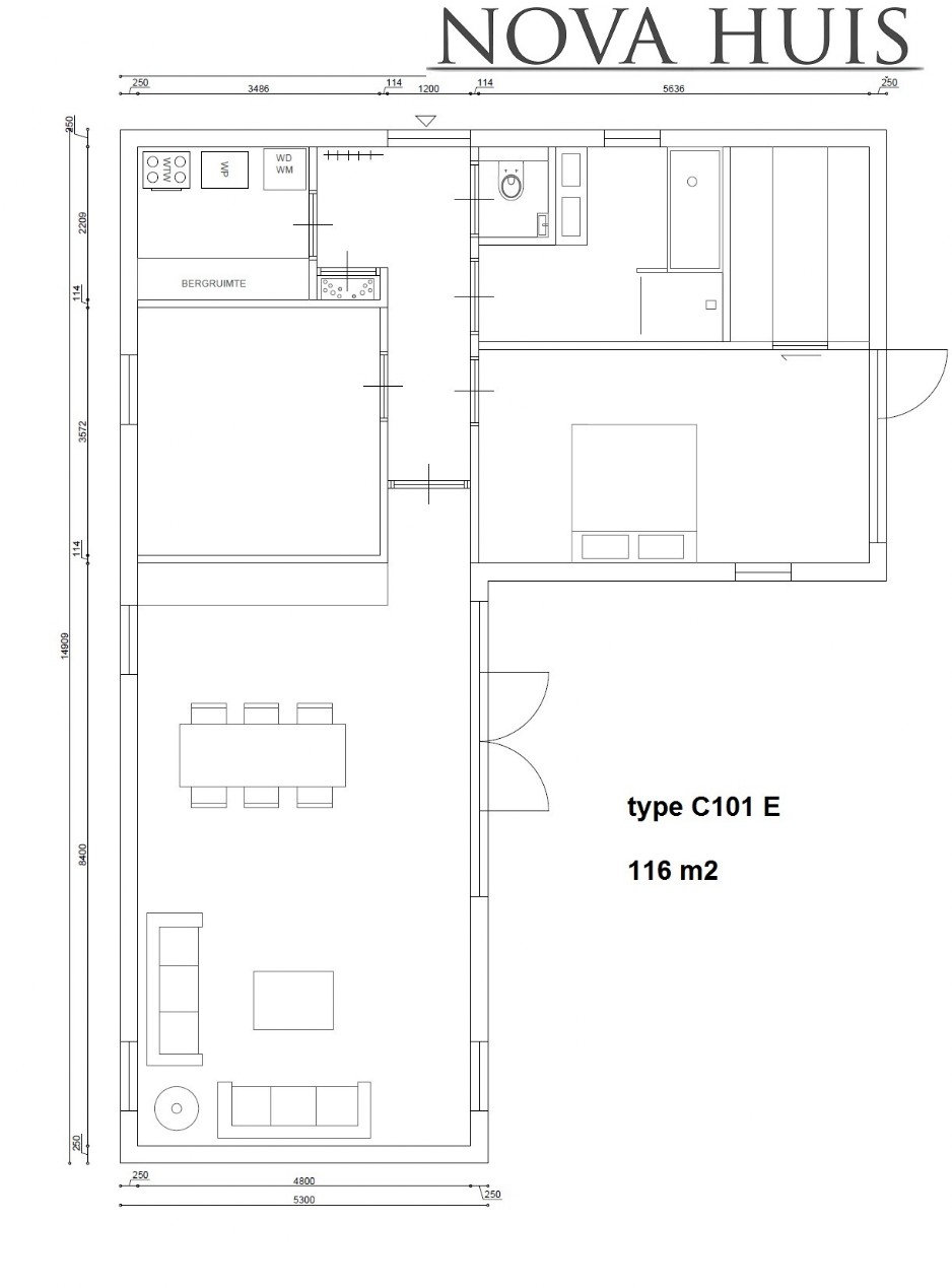
NOVA-HUIS C101 L vorm bungalow levensloopbestendig Staalframebouw Nederland
NOVA-HUIS C101 L vorm bungalow levensloopbestendig Staalframebouw Nederland
NOVA-HUIS C101 L vorm bungalow levensloopbestendig Staalframebouw Nederland
NNOVA-HUIS C101 L vorm bungalow levensloopbestendig Staalframebouw Nederland
NOVA-HUIS C101 L vorm bungalow levensloopbestendig Staalframebouw Nederland
NOVA-HUIS C101 L vorm bungalow levensloopbestendig Staalframebouw Nederland
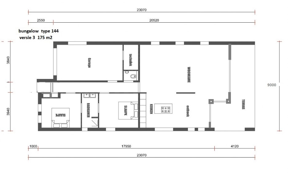
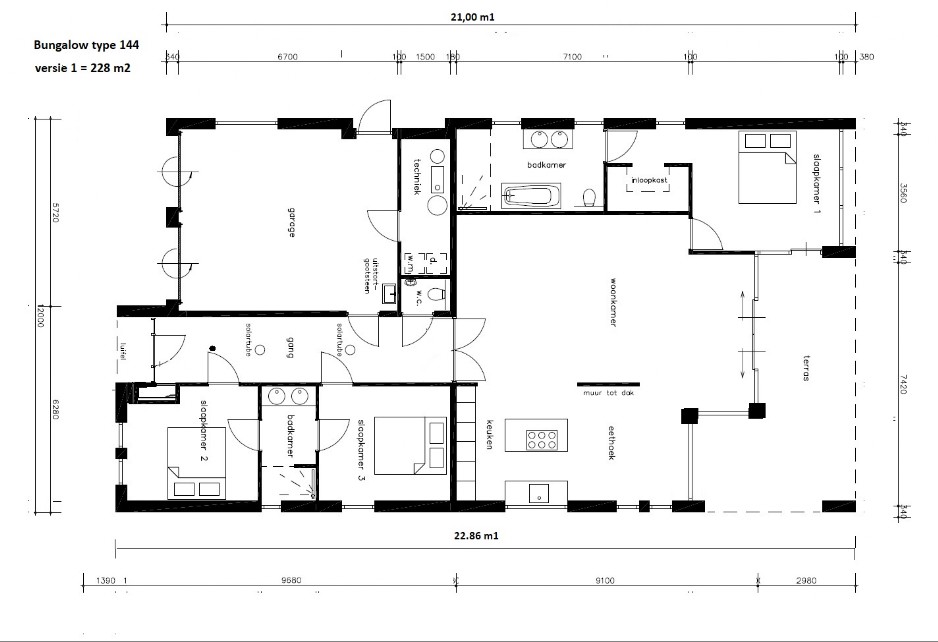
NOVA HUIS A154 Bungalow ontwerpen en bouwen staalframebouw Nederland
NOVA-HUIS A111 levensloopbestendige bungalow ontwerp en bouw Staalframebouw Nederland
Terug naar de inhoud