levensloopbestendig met verdieping K380 - NOVA HUIS

NOVA-HUIS LOGO
Ga naar de inhoud
NOVA-HUIS moderne kubistische woningen.

K380



NOVA-HUIS K380 nieuw ontwerp eigenbouw met staalframe van ATLANTA MBS
NOVA-HUIS K380 nieuw ontwerp eigenbouw met staalframe van ATLANTA MBS
NOVA-HUIS K380 nieuw ontwerp eigenbouw met staalframe van ATLANTA MBS
NOVA-HUIS K380 nieuw ontwerp eigenbouw met staalframe van ATLANTA MBS
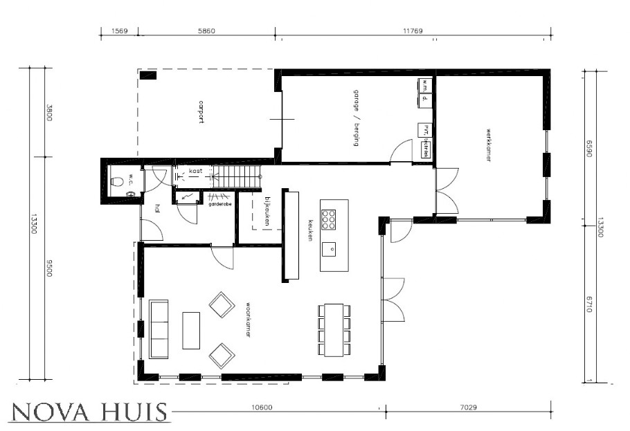
De indelingen van de NOVA-HUIS ontwerpen kunnen in veel gevallen geheel worden aangepast naar uw wensen en eisen en de mogelijkheden van uw kavel.



NOVA-HUIS K380 nieuw ontwerp eigenbouw met staalframe van ATLANTA MBS
NOVA-HUIS K380 nieuw ontwerp eigenbouw met staalframe van ATLANTA MBS
Wilt u weten wat van ontwerp K 380 de bouwsom is?

Of wilt u het ontwerp laten aanpassen naar uw wensen en voor uw kavel?

Terug naar de inhoud