Moderne kubistische levensloopbestendige woning K389 - NOVA HUIS

NOVA-HUIS LOGO
Ga naar de inhoud
NOVA-HUIS moderne kubistische woningen.

K389
NOVAHUIS K389 ATLANTA MBS staalframebouw levensloopbestendige woning met overdekt terras
NOVAHUIS K389 ATLANTA MBS staalframebouw levensloopbestendige woning met overdekt terras
NOVAHUIS K389 ATLANTA MBS staalframebouw levensloopbestendige woning met overdekt terras
NOVAHUIS K389 ATLANTA MBS staalframebouw levensloopbestendige woning met overdekt terras
NOVAHUIS K389 ATLANTA MBS staalframebouw levensloopbestendige woning met overdekt terras
NOVAHUIS K389 ATLANTA MBS staalframebouw levensloopbestendige woning met overdekt terras
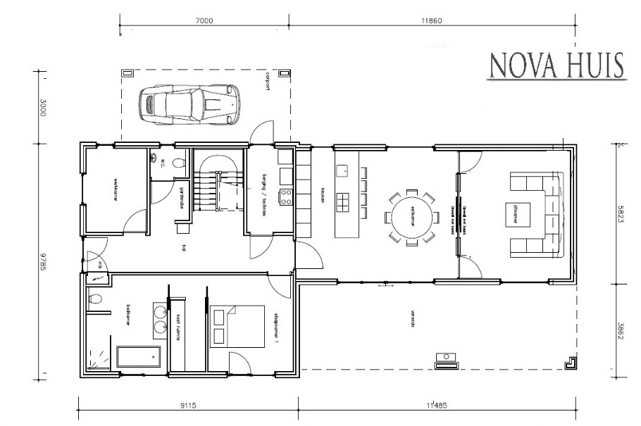
De indelingen van de NOVA-HUIS ontwerpen kunnen in veel gevallen geheel worden aangepast naar uw wensen en eisen en de mogelijkheden van uw kavel.



NOVAHUIS K389 ATLANTA MBS staalframebouw levensloopbestendige woning met overdekt terras
NOVAHUIS K389 ATLANTA MBS staalframebouw levensloopbestendige woning met overdekt terras
Wilt u weten wat van ontwerp K 389 de bouwsom is?

Of wilt u het ontwerp laten aanpassen naar uw wensen en voor uw kavel?

Terug naar de inhoud