NOVAHUIS K 329 moderne bungalow met verdieping - NOVA HUIS

NOVA-HUIS LOGO
Ga naar de inhoud
NOVA-HUIS moderne kubistische woningen.

K329



NOVA-HUIS  K329 levenloopbestendige met verdieping bouwen met Staalframebouw Nederland
NOVA-HUIS  K329 levenloopbestendige met verdieping bouwen met Staalframebouw Nederland
NOVA-HUIS  K329 levenloopbestendige met verdieping bouwen met Staalframebouw Nederland
NOVA-HUIS  K329 levenloopbestendige met verdieping bouwen met Staalframebouw Nederland
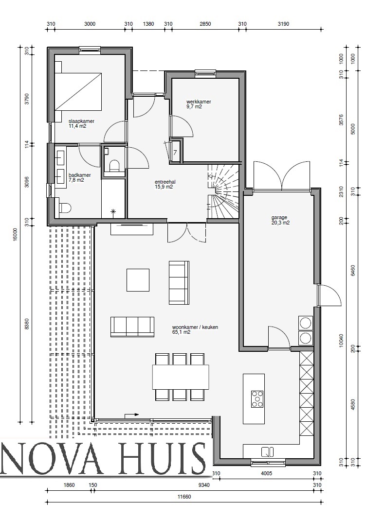
De indelingen van de NOVA-HUIS ontwerpen kunnen in veel gevallen geheel worden aangepast naar uw wensen en eisen en de mogelijkheden van uw kavel.



NOVA-HUIS  K329 levenloopbestendige met verdieping bouwen met Staalframebouw Nederland
NOVA-HUIS  K329 levenloopbestendige met verdieping bouwen met Staalframebouw Nederland
Wilt u weten wat dit ontwerp en de bouw ervan kost?

Of wilt u het ontwerp laten aanpassen naar uw wensen en voor uw kavel?

Terug naar de inhoud