Klassieke ontwerpen: woning met hellend dak en aanbouw
Type 153 ( Ontwerp GeWoon Architecten)


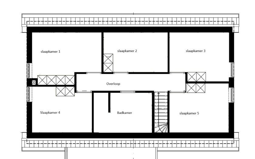
De indelingen van de ontwerpen kunnen in veel gevallen geheel worden aangepast naar uw wensen en eisen en de mogelijkheden van uw kavel én uw bouwbudget.


Wilt u weten wat dit ontwerp en de bouw ervan kost?
Of wilt u het ontwerp laten aanpassen naar uw wensen en voor uw kavel?
b.v. afmeting 13 x 8, 12 x 7, 12 x 6?