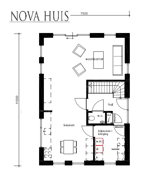
NOVA-HUIS moderne woning met schuin dak
Ontwerp Kap 143




De indelingen van de NOVA-HUIS ontwerpen kunnen in veel gevallen geheel worden aangepast naar uw wensen en eisen en de mogelijkheden van uw kavel.


Wilt u weten wat dit ontwerp en de bouw ervan kost?
Of wilt u het ontwerp laten aanpassen naar uw wensen en voor uw kavel?